key words: Balance, Cemetery, Chapel, Concrete, LIGHT, Meditation, MOSAIC STONE, VOID

TOMBA BRION - Photography: © Filippo Poli
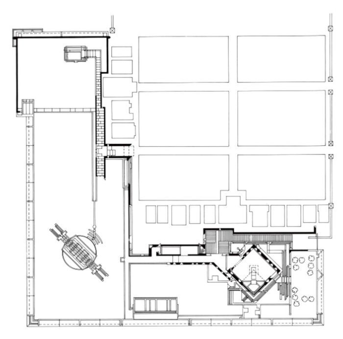
The Brion Cemetery is a vessel for reflection, ritual, and memory. The multifunctional programme, comprising a chapel, tomb, meditation space, and garden, offers a comprehensive spiritual journey. Scarpa’s intricate use of concrete conveys symbolic beauty, reinforced by mosaics and bronze elements that are woven into the architectural form.
Water and light are central spiritual drivers, guiding visitors along their journey and offering moments of deeper reflection. Filtering through geometric detailing into an oasis of lilies, water offers complete peace and contemplation.

TOMBA BRION EXTERIOR - Photography: © Filippo Poli

TOMBA BRION EXTERIOR - Photography: © Filippo Poli

TOMBA BRION EXTERIOR - Photography: © Filippo Poli

TOMBA BRION EXTERIOR - Photography: © Filippo Poli

TOMBA BRION EXTERIOR - Photography: © Filippo Poli

TOMBA BRION EXTERIOR - Photography: © Filippo Poli

TOMBA BRION EXTERIOR - Photography: © Filippo Poli

TOMBA BRION EXTERIOR - Photography: © Filippo Poli

TOMBA BRION EXTERIOR - Photography: © Filippo Poli

TOMBA BRION EXTERIOR - Photography: © Filippo Poli

TOMBA BRION EXTERIOR - Photography: © Filippo Poli

TOMBA BRION EXTERIOR - Photography: © Filippo Poli

TOMBA BRION EXTERIOR - Photography: © Filippo Poli

TOMBA BRION EXTERIOR - Photography: © Filippo Poli

TOMBA BRION EXTERIOR - Photography: © Filippo Poli

TOMBA BRION INTERIOR - Photography: © Filippo Poli

TOMBA BRION INTERIOR - Photography: © Filippo Poli

TOMBA BRION INTERIOR - Photography: © Filippo Poli

TOMBA BRION INTERIOR - Photography: © Filippo Poli

TOMBA BRION INTERIOR - Photography: © Filippo Poli

TOMBA BRION INTERIOR - Photography: © Filippo Poli

TOMBA BRION INTERIOR - Photography: © Filippo Poli

TOMBA BRION INTERIOR - Photography: © Filippo Poli

FLOOR PLAN - © CARLO SCARPA

SKETCHES - © CARLO SCARPA

SKETCHES - © CARLO SCARPA

SKETCHES - © CARLO SCARPA

SKETCHES - © CARLO SCARPA
